Works

施工実績

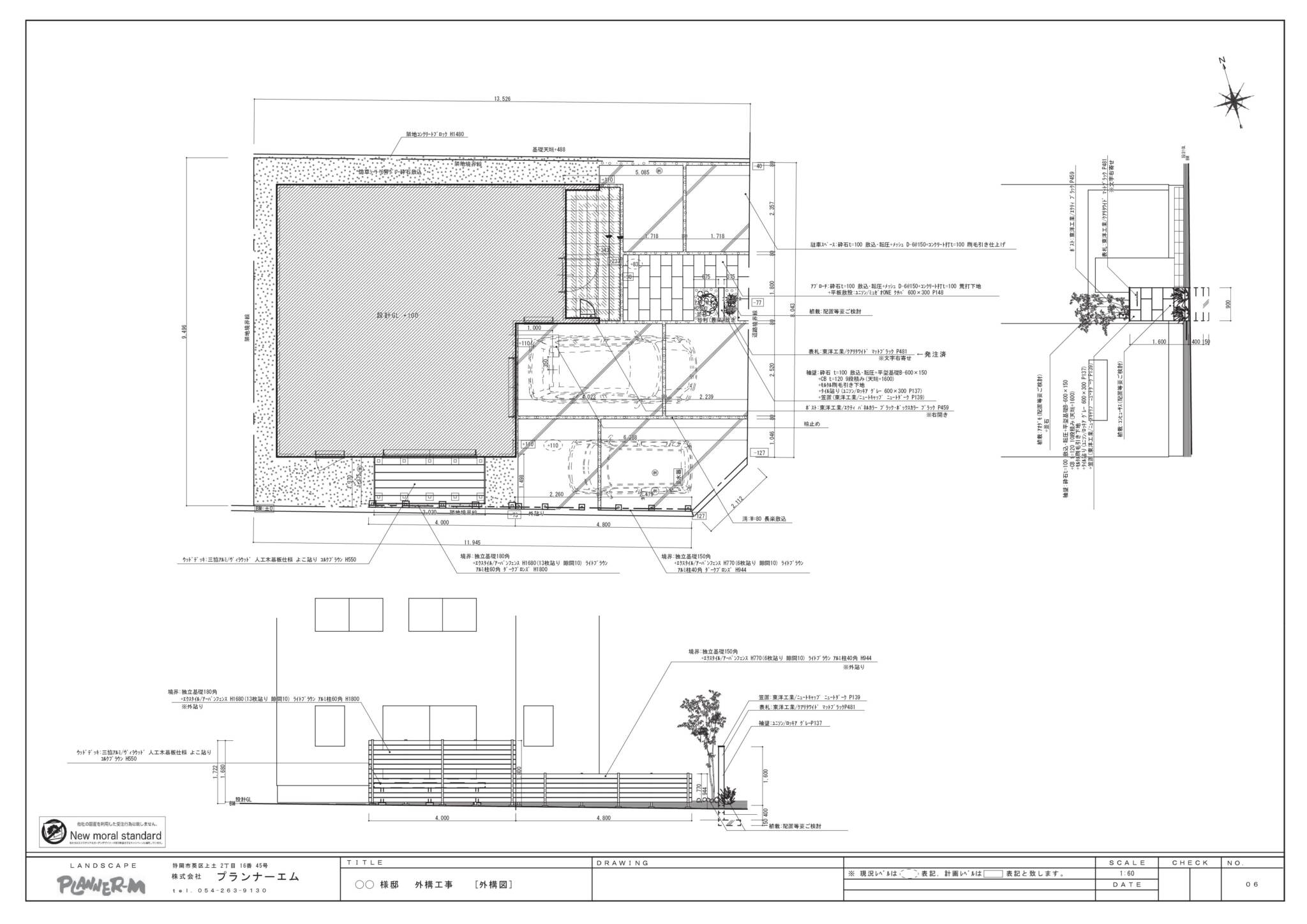
静岡市葵区 H様邸

アプローチ
ガーデンアイテム・その他
植栽
門まわり・外壁
駐車スペース
スマホで見やすいLPはこちら
ページトップへ戻る